For Sale: Plot of land with Planning

21 - 23 Minniedale, Surbiton KT5 8DH

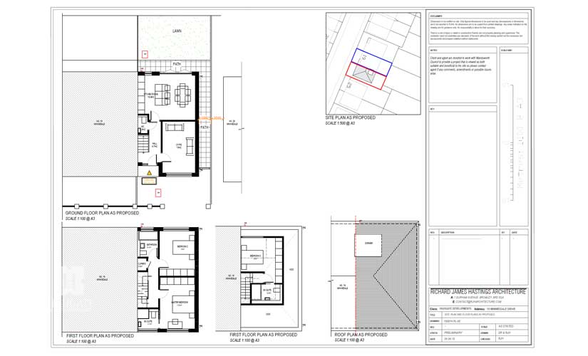
Plot of land with planning permission to build 3 bed attached property.

21 - 23 Minniedale, Surbiton KT5 8DH Call +44(0)208 508 8029

Property Description

Plot of land with planning permission to build 3 bed attached property. With 2 x en suite rooms family bathroom and spacious ground floor living accommodation. Section 106 approved, discharge of conditions pending. Available as plot or after build.

 

  • New Build
  • 2 en suite rooms
  • Contemporary décor and design
  • 3 bed end terraced
  • All bedrooms double
  • Close to Station
  • Good local Schools

 

Local Attractions

Being part of a Royal borough should come with a few perks and Surbiton does not disappoint. The famous Hampton Court Palace is 3.6 miles away celebrating its 500th year anniversary.

 

For the avid horse racing fan Surbiton is blessed with having two famous race courses in close proximity: Sandown Park (3.6 miles) and the famous Kempton Park (6 Miles) which starts off the National Hunt jump season in the horse racing calendar.

 

There are also two world famous theme parks in Thorpe Park and Chesington World of Adventures

 

There is plenty to do to keep everyone entertained from thrill seeking to the lovers of Arts, or just a gentle stroll by the river.

 

Interested in this property? Call us now on +44(0)208 508 8029

Details

  • New Build
  • 2 en suite rooms
  • Contemporary décor and design
  • 3 bed end terraced
  • All bedrooms double
  • Close to Station
  • Good local Schools
  •  
  • Call now on +44(0)208 508 8029